SamBuchanan.com HOME
69 Dugdale Street Cook
AUCTION: Saturday 14th February at 4:30pm on site
BUYER GUIDE: Over $410,000, updated 19/1/18
PAGE MENU
– DOWNLOADS
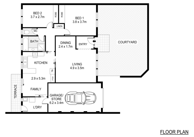
– FLOOR PLAN
– SITE PLAN
– PHOTOS
– DETAILED DESCRIPTION
– COMPARABLE SALES
– THE FRIENDLY AUCTION PROCESS
– PRE AUCTION OFFERS
– FINANCE
– ABOUT SAM
DETAILED DESCRIPTION
Offering a flexible and large open plan design, the segregated main bedroom, landscaped gardens and huge deck entertaining area with solid timber doors are just a few of the standout features. The owners have cared for this home and this is reflected in its presentation, ready for you to move into
Just a short stroll under 180m away is Neville Bonner Primary School and Bonner shopping centre featuring Woolworths, café, salon and takeaway shops etc. This property would be one of very few that is positioned to allow ease of living within a short stroll to everything Bonner has to offer
Key sizes:
- Living size: 96m² approx
- Block size: 256m² approx.
- Garage size: 25m² approx.
Key features inside:
- Open plan kitchen with stone benches & stainless steel appliances
- Segregated main bedroom with ensuite
- Shower & separate bathtub in main bathroom
- Queen size 2nd and 3rd bedrooms with built-in robes
- Ducted gas heating
- EER 6 stars
Key features outside:
- Solid timber doors opening to deck entertaining area
- Large pergola covering the deck – unnapproved
- Landscaped gardens
- Enclosed backyard, separate to driveway and garage
Key numbers:
- Rates: $1,695pa approx
- Land tax (if rented): $2,174pa approx
- Year of construction: 2009
- <180m to Woolworths, Bonner shopping centre and Neville Bonner Primary School
COMPARABLE SALE #1
40 Dexter Street Cook
LISTED for $489,000
SOLD for $465,000 on 6/4/17
DIFFERENCE of -$24,000
Bedrooms: 3
Bathrooms: 1
Garage: 1
Block Size: N/A
Living Size: Not advertised by the selling agent
Key features: Backing open space, original kitchen, updated bathroom, Tenanted at $430pw, single garage with internal access
COMPARABLE SALE #2
36 Dexter Street Cook
LISTED for $479,950
SOLD for $470,950 on 22/11/17
DIFFERENCE of -$9,000
Bedrooms: 2
Bathrooms: 1
Garage: 1
Block Size: N/A
Living Size: Not advertised by the selling agent
Key features: Renovated kitchen, partially updated bathroom, single garage with internal access
COMPARABLE SALE #3
88 Dexter Street Cook
SOLD for $471,000 on 20/5/17
Bedrooms: 3
Bathrooms: 1
Garage: 1
Block Size: N/A
Living Size: 83m² approx
Key features: Original condition throughout, single garage with internal access
COMPARABLE SALE #4
100 Bourne Street Cook
SOLD for $477,000 on 5/8/17
Bedrooms: 2
Bathrooms: 1
Carport: 2
Block Size: 393m² approx
Living Size: 92m² approx inc sunroon
Key features: Backing open space, sunroon extension, original condition throughout, double carport
COMPARABLE SALE #5
14/3 Sexton Street Cook
SOLD for $510,000 on 21/108/17
Bedrooms: 2
Bathrooms: 1
Carport: 2
Block Size: N/A
Living Size: Not advertised by the selling agent
Key features: Siding open space, renovated kitchen, new carpet, 6 perosn spa, large landscaped yard, single garage with internal access
THE FRIENDLY AUCTION PROCESS
Sam prides himself on the way he conducts the promotion of his sellers homes. He utilises the Friendly Auction System which is designed to make the process of buying at auction easier, more informed and transparent with the agent.
One of the things buyers appreciate the most is the publishing of price guides and talk openly with buyers about pricing of the home, which is then updated throughout the campaign from feedback by interested parties week by week to provide buyers and sellers with a more accurate indication of the sell price on auction day.
Sam can also help buyers organise:
- Private showings outside of the allocated open homes if those days/times are not suitable.
- A free finance meeting with a senior broker from Clarity home loans who will ensure finances are in order by auction day if given a couple of weeks notice.
- A free discussion with the building inspector to chat about any items in the building, pest, compliance and EER reports and to discuss extent of any rectifications works if required.
- Quotes for any works buyers wish to do on the home so they can factor the costs in to their bidding on the day.
- Access for a bank valuation, if required.
- Re-negotiation of clauses in the contract to suit individual buyers circumstances (eg: settlement date or exchange deposit).
- Pre-auction bidding strategy meeting to give advice on how to bid to give the strongest chance of securing the home within budget, we can also indicate extent of other buyer interest in this meeting.
- Pre-registration and authority forms for others to bid on behalf of the actual buyer if they can not, or simply don’t want, to bid personally.
- A referral to a panel of solicitors who have ideal systems for pre auction buyers. You can choose one to review the contract and assist with any clauses or special conditions to suit your situation. Many have a one off fee upfront and they will review as many property contracts with you as you need, because you may review 5 different auction contracts, and only buy 1 of them.
- A link to the full marketing contract can be sent to the solicitor you select prior to auction day by requesting this from us by phone or email
PRE AUCTION OFFERS
We expect multiple buyer interest in this property so we like to give every buyer the same opportunity to place your best pre auction offer forward if it is of interest to you.
This applies to all buyers and the agents in our company so everyone has the same ability to make an offer and the owners in conjunction with the selling agent can decide on the best options moving forward.
Whether an offer can be considered encompass the following:
- Price
- Where the price falls in relation to other buyers interest levels
- Conditions of purchase (if any)
- Deposit available
- Time frame for settlement
- How many buyers are interested with the same/similar offer details
Considering the above factors will influence whether a buyers offer can be considered pre auction or, if it is in line with other buyers then the auction process if the best and fairest method for all parties.
As part of the friendly auction process, silent auctions and gazumping prior to auction aren’t considered favorable for any party and aren’t conducted.
I look forward to hearing from you if you would like to place an offer forward and I welcome you to contact me if you would like to discuss anything further.
FINANCE

To bid at auction or to purchase prior to auction, a buyer needs unconditional approval from a lender.
Clarity Financial provide a free mortgage broking service and have access to all the banks so they can compare offers, find you the most suitable deal and competitive rates to help you obtain pre-approval in order to bid..
My strong relationship with Clarity means they really look after my clients and understand the time frame involved with obtaining approval in just a few weeks for an auction.
They also truly care, and guide you throughout the entire process of buying a property to make it a street free and much less daunting experience.
Arman has over 8 years of experience as a broker and has won a whole host of awards, he will make the entire process as simple as possible for his clients, keeping them informed throughout the transaction. Arman is my personal broker for my properties too, so I can confidently refer you to him.
You can call Arman on 6209 1990 or email him at arman.yazarloo@clarityfinancial.com.au – just let him know I referred you.
ABOUT SAM
Many agents tell their clients what they want to hear, but Sam says you shouldn’t believe them, including him for that matter too.
The only way to predict your future selling outcome is to look back at what the agent has done in the recent past and hear from those clients. You should see their past results, selling statistics and be able to chat directly with their past clients.
Sam Buchanan is in his 10th year with Independent Property Group as a senior real estate sales agent
Sam is an energetic, ambitious, committed & highly motivated individual. Since entering the world of real estate at the age of 18, Sam has always thrived on the challenge of achieving the best possible outcome for his clients.
Sam has always loved real estate. He purchased his first property off plan at the age of 20, his second property, an investment property at the age of 22 with his third at the age of 25.
In 2016, 74% of Sam’s business was repeat & referral based.
Being nearly 3 in 4 homes sold, this is evidence of Sam’s continued ability to deliver on his promises.
Success driven, Sam’s focus in real estate is to maintain a consistent performance throughout the entire sales process. This leads to building long-term relationships through his ability to develop rapport, empathy & trust, while maintaining his core focus on exceptional customer service.
Committed to ongoing training & coaching, Sam’s goal in real estate is to not only achieve the best possible outcome for his vendors, but to provide service beyond any buyer’s or seller’s expectations, which will ultimately result in repeat & referral business – Sam’s belief of a job well done.
Having purchased numerous properties, Sam has seen the process from an investor’s perspective & a live-in owner’s perspective. This enables Sam to effectively negotiate sales with both types of clients, while targeting their varied property needs. Having an understanding of the stress & concerns an investor or live-in purchaser encounters, Sam is able to achieve great results coupled with tuned & polished negotiation skills.
Sam’s other interests outside of real estate include motor sports, muscle cars, fitness/lifting & model aeroplanes. Discipline, focus & hard work, coupled with the drive to succeed saw Sam represent Australia in BMX Racing at the World Championships in France, & this passion for success has been carried over into his real estate career.








































































